Ampio trilocale con cantina e box
Informazioni Immobile
Immobile in Vendita
Prezzo: 134000 €
Area: 130mq
Appartamento
Buono / Abitabile
Libero
3
Non arredato
E
3
1
Autonomo
Abitabile
Si, singolo
1
2
Nessuno
Si
Si
Si
Si
Si
Si
Descrizione dell'immobile
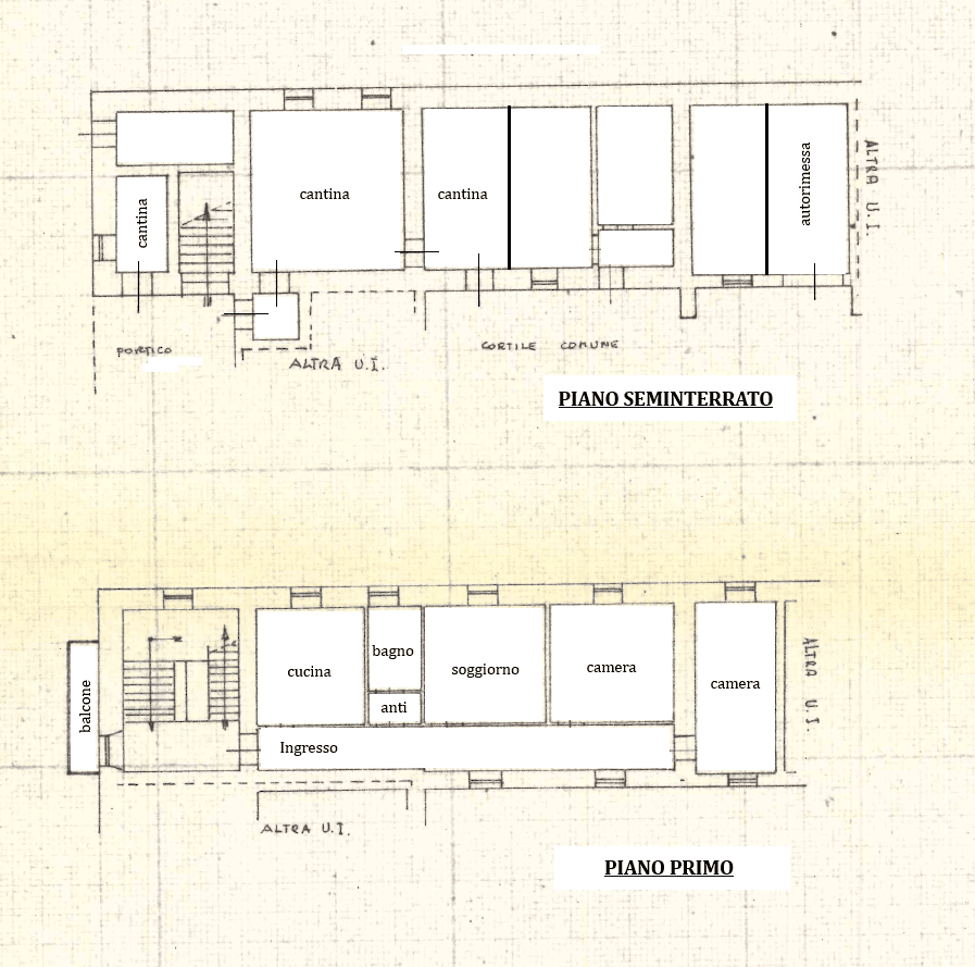
Rif. 112 - In piccolo contesto di corte, luminoso ed ampio appartamento di circa 130 mq. posto al piano primo con balcone composto da ingresso/disimpegno, soggiorno, cucina abitabile, due camere matrimoniali e bagno ristrutturato oltre a cantine e autorimessa. No spese comuni...
L'immobile è dotato di caldaia autonoma e infissi doppio vetro.
Euro 134.000,00































