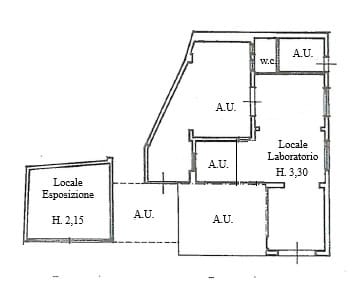
Locale laboratorio ed ambiente ad uso esposizione
Informazioni Immobile
Immobile in Affitto
Prezzo: 900 €
Area: 125mq
Locali commerciali
Buono / Abitabile
Libero
2
Non arredato
In fase di rilascio
Piano terra
Assente
1
Si
Si
Descrizione dell'immobile
Aff41- Località CUASSO AL PIANO
Su strada di forte passaggio,locale adibito ad uso LABORATORIO di circa mq. 90 con bagno e locale con vetrina in corpo staccato di circa 35mq, entrambi posti al piano terra.
Annessa ampia area esterna da adibire a posti auto.
Canone di locazione Euro 900,00 mensili, nessuna spesa comune!
















